9407 Dewaal Rdg, Brentwood, TN 37027
About This Property
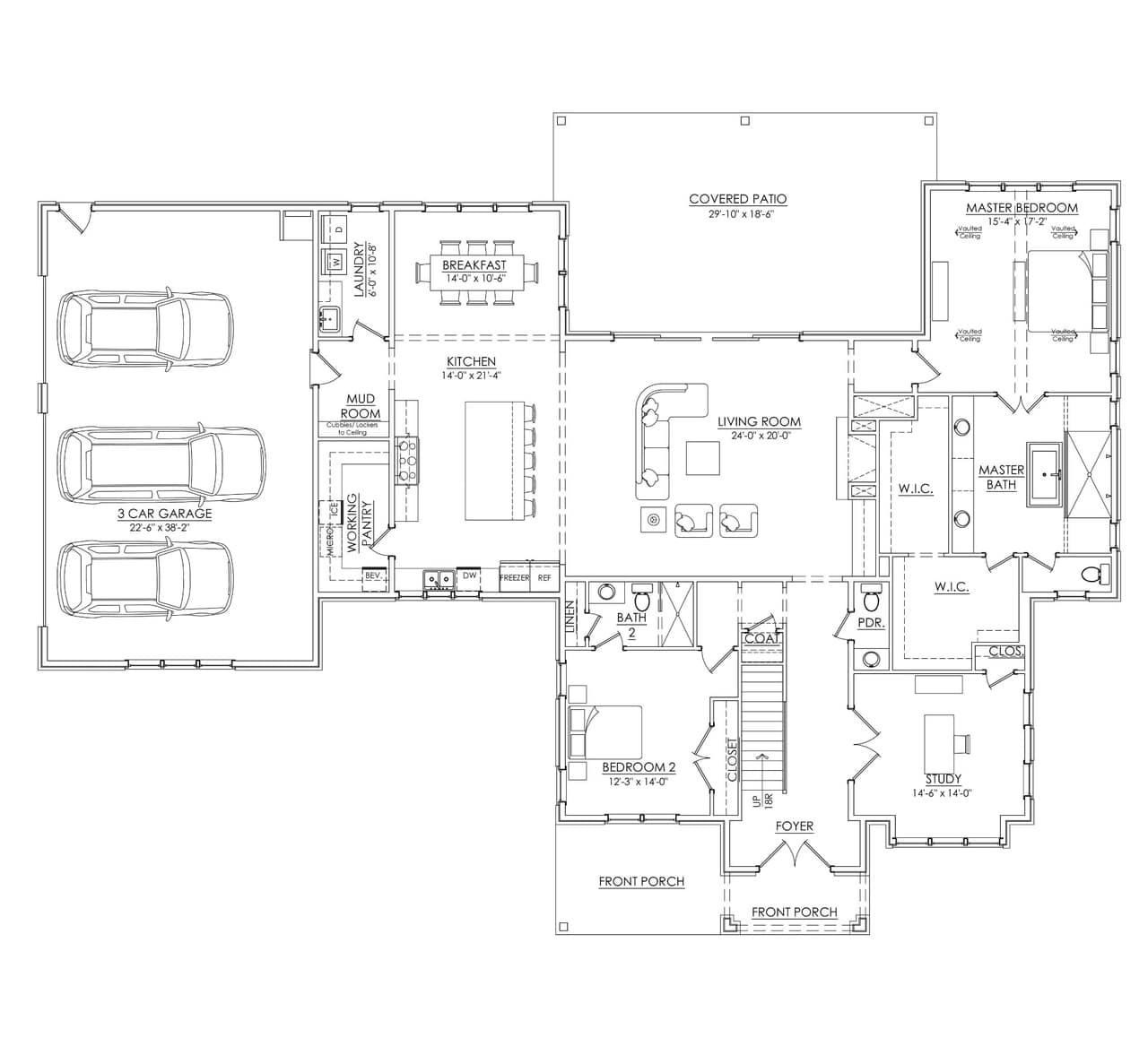
This custom built home offered by Hewn Custom Home Design has traditional charm and modern conveniences as well as a vaulted ceiling Primary bedroom, an en-suite Secondary bedroom and an Office on the main level. It also features 12 foot ceilings in the Family room with a cozy fireplace, a chef’s Kitchen with a working pantry equipped with an ice-maker, sink and beverage cooler and an enormous covered outdoor living space. The second floor features 3 more en-suite Bedrooms and baths, a Bonus room and a Flex room which is large enough to serve many functions. You can still make some selections depending on which stage of construction the home is in at contract.
Property Features
Bedrooms & bathrooms
- Bedrooms: 5
- Bathrooms: 5
- Full bathrooms: 4
- 1/2 bathrooms: 2
- Main level bedrooms: 2
Bedroom 1
- Features: Suite
- Level: Suite
- Area: 255 Square Feet
- Dimensions: 17×15
Bedroom 2
- Features: Bath
- Area: 168 Square Feet
- Dimensions: 14×12
Bedroom 3
- Features: Bath
- Area: 210 Square Feet
- Dimensions: 15×14
Bedroom 4
- Features: Bath
- Area: 168 Square Feet
- Dimensions: 14×12
Recreation room
- Area: 480 Square Feet
- Dimensions: 24×20
Dining room
- Area: 140 Square Feet
- Dimensions: 14×10
Kitchen
- Area: 294 Square Feet
- Dimensions: 21×14
Living room
- Area: 480 Square Feet
- Dimensions: 24×20
Heating
- Central
Cooling
- Central Air
Appliances
- Included: Double Oven, Electric Oven, Gas Range, Dishwasher, Disposal, Ice Maker, Microwave, Refrigerator
Features
- Air Filter, Built-in Features, Ceiling Fan(s), Extra Closets, High Ceilings, Pantry, Smart Thermostat, Walk-in Closet(s)
- Flooring: Wood, Tile
- Basement: None
- Number of fireplaces: 1
- Fireplace features: Family Room
Interior area
- Total structure area: 5,605
- Total interior livable area: 5,605 sqft
- Finished area above ground: 5,605
Property
Parking
- Total spaces: 3
- Parking features: Garage Door Opener, Garage Faces Side
- Garage spaces: 3
Features
- Levels: Two
- Stories: 2
- Patio & porch: Porch, Covered, Patio
Lot
- Size: 0.65 Acres
Construction
Type & style
- Home type: Single Family
- Architectural style: Traditional
- Property subtype: Single Family Residence, Residential
Materials
- Brick, Fiber Cement
- Roof: Shingle
Condition
- New construction: Yes
- Year built: 2026
Utilities & green energy
- Sewer: Public Sewer
- Water: Public
- Utilities for property: Water Available, Cable Connected
HOA
- Has HOA: Yes
- Amenities included: Pool, Sidewalks, Tennis Court(s), Underground Utilities
- HOA fee: $2,500 Annually
Location
- Region: Brentwood
Financial & listing details
- Price per square foot: $480/sqft
- Annual tax amount: $1
- Date on market: 01/04/2026
Contact Hewn Sales to Sales to Inquire About This Home
"*" indicates required fields





